4MCAD to nowa na rynku platforma IntelliCAD, która od czerwca 2009 roku zdobyła uznanie wielu polskich inżynierów i projektantów. Dostępna w polskiej wersji językowej aplikacja firmy 4M charakteryzuje się dużą funkcjonalnością, szybkością i stabilnością pracy.

Rys. 4M
Wyróżnikiem 4MCAD jest nie tylko jego bardzo atrakcyjna cena, ale również oferowana funkcjonalność. Podstawą jest możliwość otwierania plików DWG oraz DXF. Dodatkowo dostępna jest obsługa poleceń znanych z AutoCAD: skryptów, stylów, kreskowań oraz wczytywanie Lispów. Funkcjonalność 4MCAD obejmuje również możliwość otwierania wielu rysunków (MDI), obsługę ActiveX, przesuwanie i powiększanie w czasie rzeczywistym, eksploratora do zarządzania warstwami, stylami czy też blokami oraz graficzny podgląd samych bloków. Użytkownik ma możliwość nagrywania skryptów oraz dostosowywania menu i pasków narzędziowych. Dostępna jest technologia I-Drop, rendering 3D oraz modelowanie bryłowe.
4MCAD jest dostępny na polskim rynku w czterech wersjach: 4M-IntelliCAD Viewer - uniwersalna przeglądarka plików DWG oraz DXF, która pozwala na przeglądanie, dodawanie tekstów, a także sprawdzanie wymiarów. Dodatkowo ten program ma możliwość drukowania wczytanych plików; 4M-IntelliCAD Classic - podstawowa platforma CAD 2D umożliwiająca projektowanie 2D; 4M-IntelliCAD Standard - wersja Classic wzbogacona o obsługę obrazów rastrowych (mapy oraz inne podkłady rastrowe) czy też rendering; 4M-IntelliCAD Professional - wersję Standard poszerzona o modelowanie bryłowe 3D, obsługę VBA, menadżera biblioteki CAD. Wraz z platformą 4MCAD oferowany jest bogaty zestaw programów branżowych (programów dedykowanych pod określone rozwiązania z zakresu inżynierii budowlanej) z wbudowaną funkcjonalnością platformy bazowej: IDEA - projekty architektoniczne, FineHVAC - wentylacja, klimatyzacja, FineELEC – instalacje elektryczne, FineLIFT - windy, FineSANI - instalacje sanitarne.

Rys. 4M
Na podkreślenie zasługuje również fakt, że wiele popularnych nakładek branżowych obecnych już na naszym rynku takich jak CP-System oraz Wentyle znakomicie współpracują z platformą 4MCAD. Bardzo ciekawym zestawieniem patrząc pod kątem rozwiązań branżowych jest 4MCAD w połączeniu z aplikacją metriCAD.
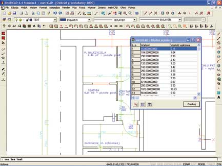
System komputerowy metriCAD to profesjonalne narzędzie, które ułatwia i przyspiesza prace oraz podnosi jakość wykonanego przedmiaru. Jest to system przeznaczony dla kosztorysantów, architektów i projektantów. Koncepcja obliczeń parametrów geometryczno-ilościowych do przedmiaru oparta jest na zasadzie świadomego wspomagania decyzji kosztorysanta lub projektanta. Podstawą sporządzenia przedmiaru jest dokumentacja w formacie DWG. Rezultat obliczeń może być przesłany do MS Excel lub przez plik tekstowy do dowolnego systemu kosztorysowego. Obecnie plik ten jest automatycznie obsługiwany przez system kosztorysowy Zuzia. System nie eliminuje wszystkich błędów, ale skutecznie ogranicza błędy rachunkowe i inne, będące wynikiem nieuwagi i tzw. czynnika ludzkiego. Istotne jest to, że w wyniku czynności opisanych powyżej powstaje wysokiej jakości dokumentacja przedmiarowa w formie elektronicznej.
Źródło: Informatyka w budownictwie, nr 1 (6) 2010
